About
Projects
Architecture
Contact
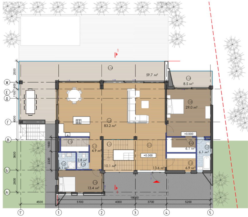
Khosta Hills
2016 - 2018
Sochi, Russia
Private Community of the 32 detached Single-Family Homes on the Hill Side
Client:
Private Investor
Size:
Site Area: 4 ha | Number of Homes: 32 DU | Home Plan Sizes: 280-650 sq. m
scope of work:
Conceptual Design / Design Development Construction Documents / Site Planning
About Project
Website of apartments
2016 - 2018
Sochi, Russia
No items found.
Next
Silver Bor
architecture
2016 - 2018