About
Projects
Architecture
Contact
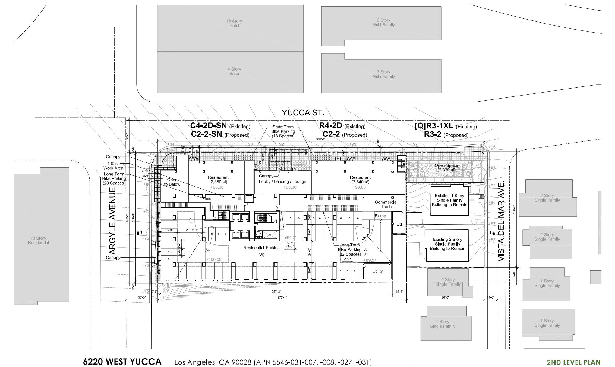
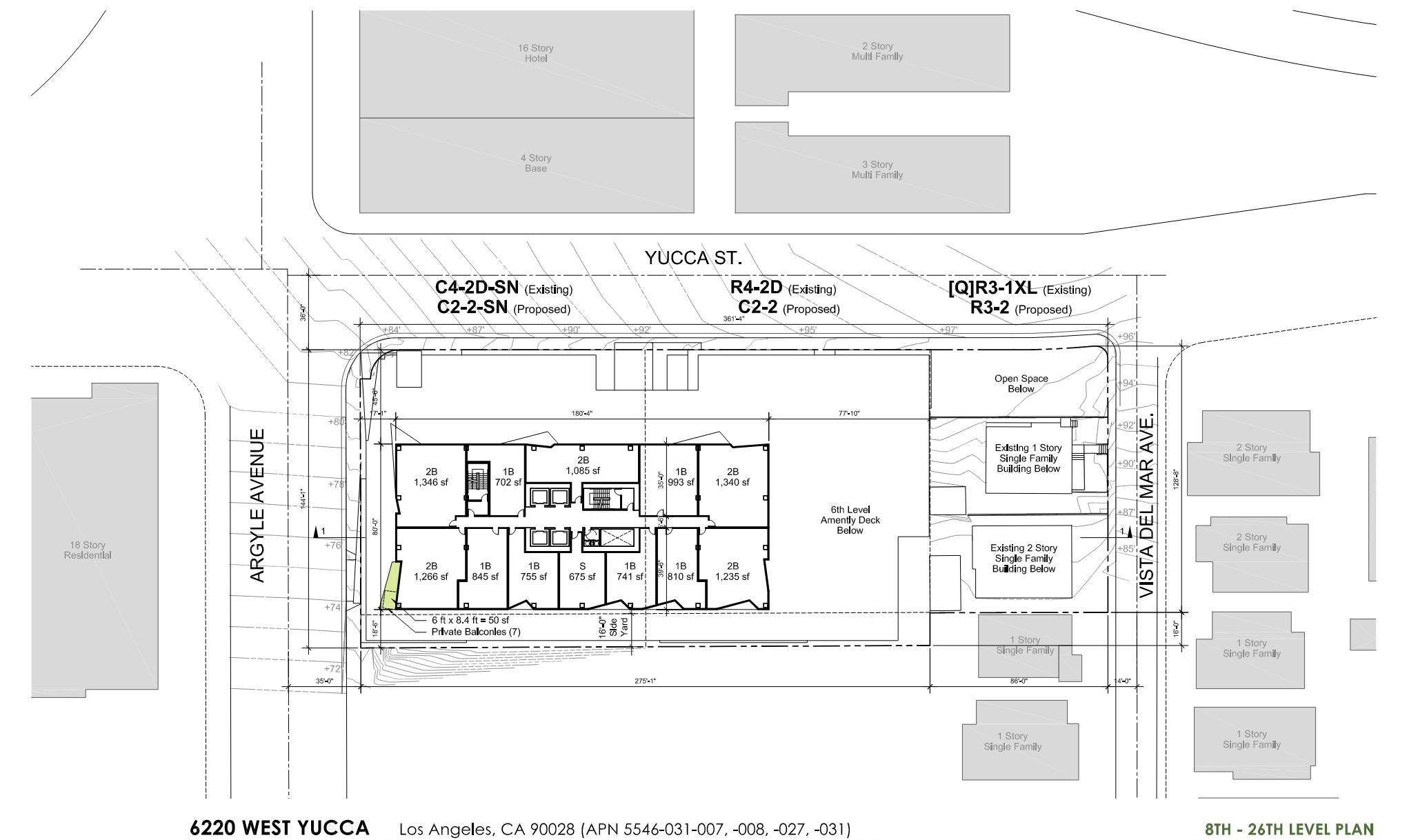
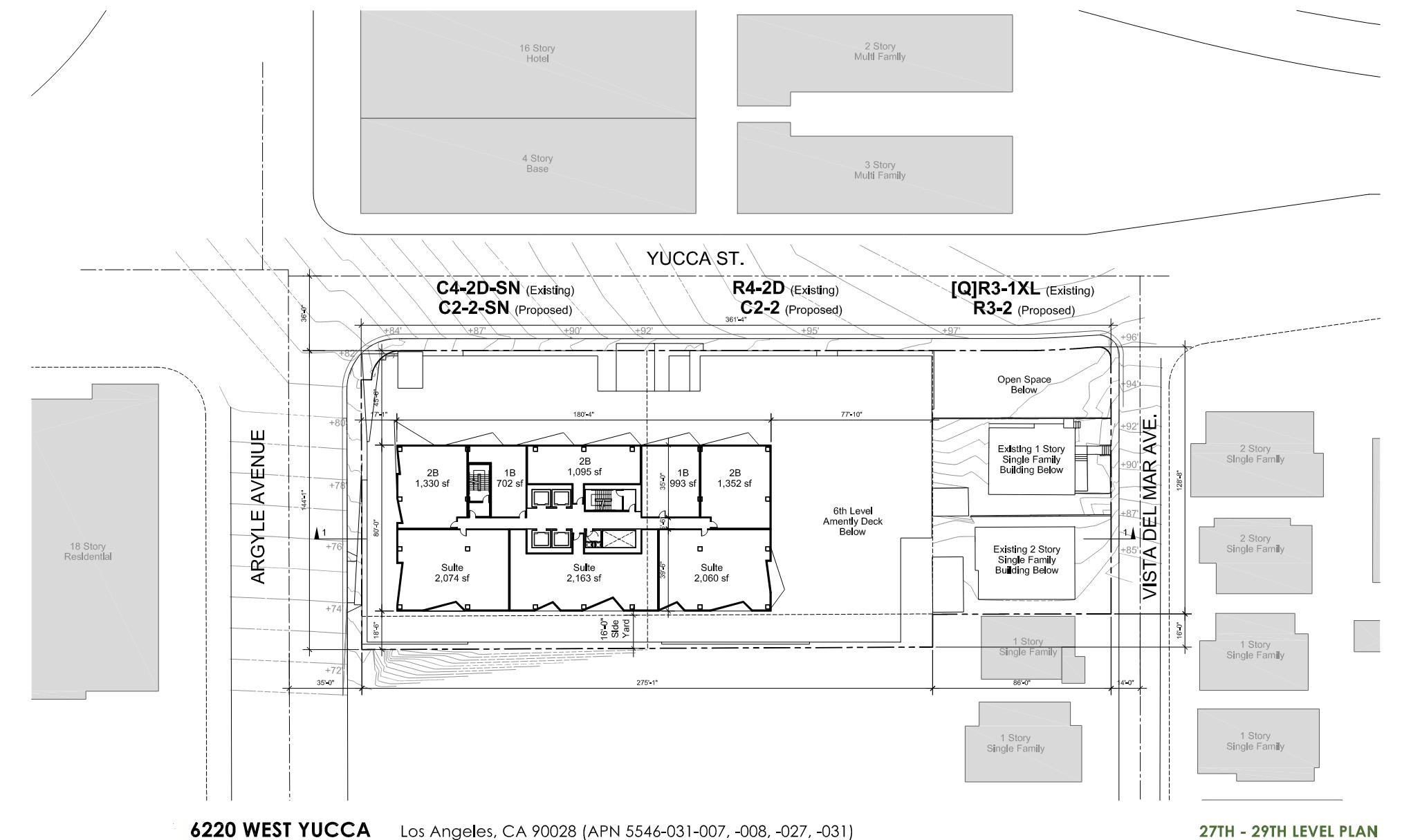
6220 Yucca
Mixed – Use High Rise Tower
LOCATION
Los Angeles, California
PROGRAM
Multi–Family, Restaurants, Retail
Size
316,500 GSF, 271 units
DATES
2020
scope of work
Conceptual Design, Schematic Design, Rezoning Package
Client
Project with AC Martin
About Project
2020
Los Angeles, California
No items found.
Next
Vivaldi
architecture
2020